Mortgage Calculator Nearby Properties Map it Book a Showing

Property Details
MLS #:
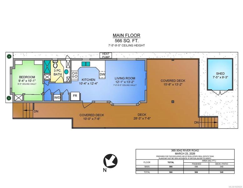
1029620
Listing Date:
2026-03-23 (Days on Market: 39)
Title:
Built in:
2018
Listing Price:
$259.00k
Details:
1 Bed 1 Bath 1 Kitchen 2 Parking
Finished Size:
566 ft2
Lot Size :
0 ft2
Address:
365 - 3042 River Rd, Duncan,Chemainus Check Map
Assessment:
$264.00k(2025)
Property Tax:
$1518.64 (2025)
Remarks:
Welcome home to Chemainus Gardens. This turnkey, well appointed 2018 park model unit offers over $36K in upgrades including a mini split heat pump, shaker style cabinetry w/spice rack pull out and lazy susans, ceiling fans, custom built-ins with drawers in bedroom, storage shed and a spacious deck. The use of bay and dormer windows, vaulted 9'6" ceiling, provide for ample natural light. This unit is decked out with an additional 550 sf of outdoor living space including two south facing covered sections backing onto the dog park and green space; and natural gas BBQ hookup. Chemainus Gardens is a pet-friendly adult community located within an idyllic 34-acre parkland setting, centrally-located close to amenities, recreation, shops, restaurants, Mount Brenton Golf Course and the Chemainus Theatre. This is a convenient, affordable, low-maintenance option for buyers looking to enjoy easy Island living in the Cowichan Valley.
Interior Features:
Blinds Ceiling Fan Dining-Living Combo Screens Wndw/Bay Vinyl
Services:
Cablevision Electricity Garbage Gas Telephone Utilities Underground Recycling
Heating:
Heat Pump Air Conditioning
Face:
N
Lot Features:
Level Serviced Golf Course Adult-Oriented Neighbourhood Central Location Park Setting Quiet Area Shopping Nearby Southern Exposure
Construction Feature:
Windows Vinyl Insulation All
Monthly Fee:
$572/M
Listing Courtesy of RE/MAX Generation (CH)

Need more info? Such as its detailed floor plans, title, disclosure statement, zoing restrictions, survey, etc.Please contact Bill Liu directly and he will send you all available info.
若这个房子有什么动态(如价格下调),我们会立刻用电子邮件及时通知您:

Book a Showing
Do you want to view the property in person?

Contact Bill Liu-highly recommended by all his clients!Click here to see his full intro.

2018 MLS Silver Award Winner in Victoria

Bill Liu
The property might look different when you see it in person.

Ask Bill what he thinks of it.

For more info about the property, just call our office: (250) 384-8124

Office: 805 Cloverdale Ave #150, Victoria, BC V8X 2S9

Pemberton Holmes
Mortgage Calculator
Price:
Down Payment
Interest(%)
Amortization (y):
Monthly Pmt: