Virtual Tour Mortgage Calculator Nearby Properties Map it Book a Showing

Property Details
MLS #:
966264
Listing Date:
2024-06-04 (Days on Market: 645)
Title:
Built in:
2019
Listing Price:
$1,449.90kPrice Reduced
Details:
2 Bed s4 Bath s1 Kitchen 8 Parking
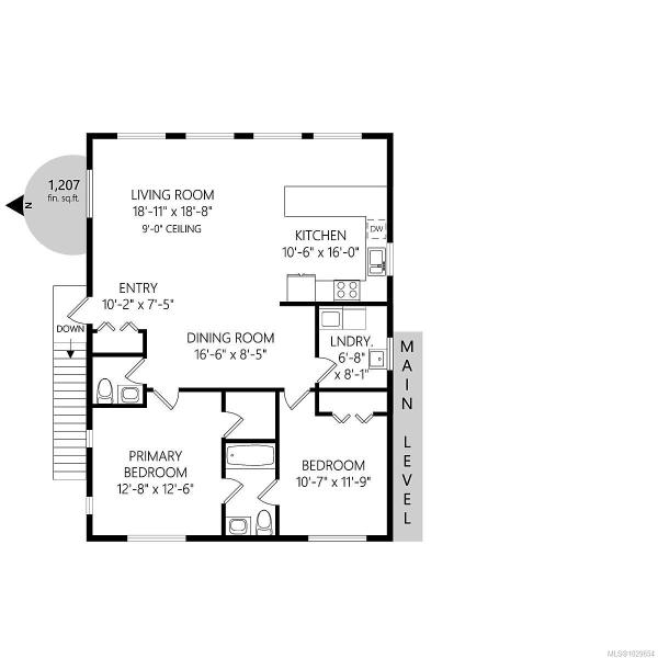
Finished Size:
1207 ft2
Lot Size :
10890 ft2
Address:
15 - 7450 Butler Rd, Sooke,Otter Point Check Map
Assessment:
$883.00k(2025)
Property Tax:
$7326.17 (2024)
Remarks:
Amazing Opportunity to Buy a completely fenced, flat 0.25-acre 2019-built, Commercial and Industrial property. Two work bays you could easily rent out 1 side of the industrial as there are 2 work bays below 2100 + sqft as follows: 29 feet x 39 feet 2 piece bathroom is one bay, and the second bay is 21 feet x 40 feet with a 2-piece bathroom. The residential living area upstairs is an open floorplan featuring a 1200 sqft well-kept legal 2 bedroom suite, literally live where you work? Or have a place where you can house employees or generate rental income. Ideal for a Car Collector, Business Operation that needs secure space, Lots of secure parking on the property. The seller has smartly put in a 3000-gallon underground cistern, Located at #15-7450 Butler Rd, near the CRD building in Sooke's Business Park. Close to Poirer and Young Lake , 5 minutes drive to Sooke Core.45 minutes to downtown Victoria.
Heating:
Baseboard
Lot Features:
Mountain View Level
Construction Feature:
Metal Siding
Monthly Fee:
$164/M
Listing Courtesy of Maxxam Realty Ltd.

Need more info? Such as its detailed floor plans, title, disclosure statement, zoing restrictions, survey, etc.Please contact Bill Liu directly and he will send you all available info.
若这个房子有什么动态(如价格下调),我们会立刻用电子邮件及时通知您:

Book a Showing
Do you want to view the property in person?

Contact Bill Liu-highly recommended by all his clients!Click here to see his full intro.

2018 MLS Silver Award Winner in Victoria

Bill Liu
The property might look different when you see it in person.

Ask Bill what he thinks of it.

For more info about the property, just call our office: (250) 384-8124

Office: 805 Cloverdale Ave #150, Victoria, BC V8X 2S9

Pemberton Holmes
Mortgage Calculator
Price:
Down Payment
Interest(%)
Amortization (y):
Monthly Pmt: