虚拟视频 按揭计算 学区概况 附近在售房源 房源地图 预约看房 周边交易情况

房屋详细信息
MLS编号:
1031144
挂牌日:
今日上市
土地性质:
建于:
1912年
挂牌价:
89.90万
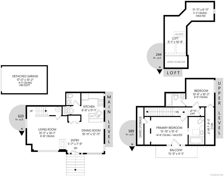
户型:
2卧3卫1厨 1车位
室内面积:
1453呎
占地:
1417呎
地址:
1 - 225 Vancouver St, Victoria,Fairfield West区 查看地图
评估值:
107.50万(2026年)
地税:
$5514.29 (2025年)
卖方介绍:
开放参观日:4月11日(周六)上午11点至下午12点30分。这栋位于库克街村中心地带的特色联排别墅,于2001年全面翻新。房屋朝西,采光极佳,拥有两间卧室和两间半浴室,采用开放式布局,层高9英尺(约2.7米),配备大型隔热窗和精美硬木地板。厨房设施齐全,配备花岗岩台面和不锈钢电器,温馨的起居室则以舒适的燃气壁炉为中心。楼上设有两间宽敞的卧室,每间卧室都配有独立的完整卫浴。主卧拥有拱形天花板,并可通往带天窗的多功能阁楼空间,以及一个朝西的阳台,让您尽享午后阳光。其他设施包括室内洗衣房、中央吸尘系统和独立车库。地理位置优越,步行即可到达库克街村的各种便利设施、海滨以及市中心。

【以上为机器自动翻译,可能不通畅。请联系我们,免费获得这个房产的全中文介绍!】 原版英文介绍按这里
公用设施:
朝向:
西
公共服务:
房屋结构:
年龄限制:
可出租?:
无限制
物业费:
$552/月
历史交易价格:
49万 (2015-08-29)
Listing Courtesy of The Agency

需要更多信息吗? 比如它的详细户型图?看看现业主的房产证?大楼的修缮储备金有多少?过去三年的财务报告?业主大会的讨论议题和纪要?未来几年有什么计划中的大修?请立刻微信联络我们,我们会发给您更多的信息。
若这个房子有什么动态(如价格下调),我们会立刻用电子邮件及时通知您:

预约看房

百闻,不如亲眼一见。

维多利亚著名华人经纪:Bill Liu-23年维多利亚经验,极熟知市场,维房网客户100%一致推荐!点这里看他的详细介绍。

Bill Liu

过去5年大维成交最多的华人经纪之一。 这么多客户的选择 - 问他,没错!

很多房子,实地看到和照片上是完全不同的概念。

听听Bill对这个房子怎么评论?有问必答。

买房卖房 投资置业,应该交给:

一个有市场眼光的人;
一个懂你需求的人;
一个专业的人;
一个值得你信赖的人。

若需要帮您安排看房, 请立刻添加维房网微信:VicFangWang

电子邮件:bill.liu.victoria@gmail.com

我们一定会尽力解答。

QR code
立刻扫描微信二维码,添加维房网
周边近期成交统计(3单)
【周边1公里左右】【过去半年】共成交【联排】【3单】。

要查询所有具体成交的房产地址、价格或时间等详情,请微信联络我们:VicFangWang。

附近几单的最近成交细节如下:
  • 3卧3卫1585呎联排,2009年建, 105万挂牌,于03-16日以105万成交。
  • 3卧3卫1544呎联排,2009年建, 103万挂牌,于02-09日以103万成交。
  • 3卧3卫1418呎联排,2009年建, 98万挂牌,于11-30日以95万成交。
周边公立学校

学校排名
小学Sir James Douglas25/49
初中Central--
* 排名基于Fraser学院2019学校报告。查看
** 点击学校名字可以查看该校所属房源。
按揭计算器
房屋价格:
首付:
贷款利率(%):
还款年限:
月供: