按揭计算 学区概况 附近在售房源 房源地图 预约看房 周边交易情况

房屋详细信息
MLS编号:
1023875
挂牌日:
2026-01-21 (上市74天)
土地性质:
建于:
2025年
挂牌价:
99.90万已降价
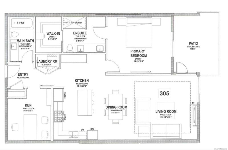
户型:
2卧2卫1厨 1车位
室内面积:
1228呎
占地:
1228呎
地址:
305 - 990 Doumac Ave, Saanich East,Cordova Bay区 查看地图
评估值:
93.20万(2026年)
地税:
--
卖方介绍:
开放参观 | 1月25日(周日)下午1-3点 在科尔多瓦湾的The Tides,无需妥协即可拥有精致生活。这套宽敞的一卧一书房两卫住宅,拥有维多利亚地区新建项目中最大的户型之一,提供超过1200平方英尺(约111平方米)的精心设计居住空间。亮点包括超大储物柜、电动汽车充电桩、大型专用电动自行车存放区以及带天然气接口的宽敞有顶露台——所有设施均按照最高的Built Green®标准建造。The Tides位于温哥华岛南岸,是科尔多瓦湾热门地段的一处精品高端住宅项目,距离“维多利亚的迷你马里布”仅几步之遥。屡获殊荣的Città Group以独特的西海岸建筑风格、可持续材料和充足的自然光线,打造精致奢华的居住体验,并提供贯穿始终的定制装修。仅剩9套住宅。拎包入住!

【以上为机器自动翻译,可能不通畅。请联系我们,免费获得这个房产的全中文介绍!】 原版英文介绍按这里
房屋结构:
朝向:
年龄限制:
可出租?:
无限制
物业费:
$446/月
Listing Courtesy of RE/MAX Camosun

需要更多信息吗? 比如它的详细户型图?看看现业主的房产证?大楼的修缮储备金有多少?过去三年的财务报告?业主大会的讨论议题和纪要?未来几年有什么计划中的大修?请立刻微信联络我们,我们会发给您更多的信息。
若这个房子有什么动态(如价格下调),我们会立刻用电子邮件及时通知您:

预约看房

百闻,不如亲眼一见。

维多利亚著名华人经纪:Bill Liu-待人诚恳,服务热情,维房网客户100%一致推荐!点这里看他的详细介绍。

Bill Liu

过去5年大维成交最多的华人经纪之一。 这么多客户的选择 - 问他,没错!

很多房子,实地看到和照片上是完全不同的概念。

听听Bill对这个房子怎么评论?有问必答。

买房卖房 投资置业,应该交给:

一个有市场眼光的人;
一个懂你需求的人;
一个专业的人;
一个值得你信赖的人。

若需要帮您安排看房, 请立刻添加维房网微信:VicFangWang

电子邮件:bill.liu.victoria@gmail.com

我们一定会尽力解答。

QR code
立刻扫描微信二维码,添加维房网
周边近期成交统计(17单)
【周边1公里左右】【过去半年】共成交【公寓】【17单】。

要查询所有具体成交的房产地址、价格或时间等详情,请微信联络我们:VicFangWang。

附近几单的最近成交细节如下:
  • 2卧2卫1138呎公寓,2021年建, 82万挂牌,于03-12日以82万成交。
  • 2卧2卫1372呎公寓,2026年建, 166万挂牌,于02-20日以175万成交。
  • 2卧2卫1666呎公寓,1999年建, 138万挂牌,于02-23日以134万成交。
周边公立学校

学校排名
小学Cordova Bay17/49
初中Royal Oak--
高中Claremont5/16
* 排名基于Fraser学院2019学校报告。查看
** 点击学校名字可以查看该校所属房源。
按揭计算器
房屋价格:
首付:
贷款利率(%):
还款年限:
月供: