按揭计算 附近在售房源 房源地图 预约看房 周边交易情况

房屋详细信息
MLS编号:
1027732
挂牌日:
2026-03-16 (上市19天)
土地性质:
建于:
1976年
挂牌价:
24.90万
户型:
2卧1卫1厨 2车位
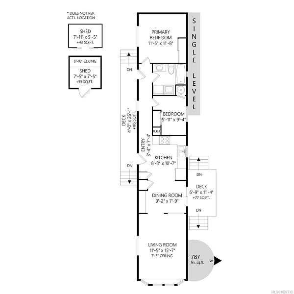
室内面积:
787呎
占地:
0呎
地址:
23 - 541 Jim Cram Dr, Duncan,Ladysmith区 查看地图
评估值:
18.60万(2025年)
地税:
$1125.51 (2025年)
卖方介绍:
Welcome to your dream home in a serene 55+ community! This beautifully renovated 2-bedroom, 1-bath mobile home offers a comfortable 787 square feet of living space, featuring brand new upgrades throughout. Enjoy the outdoors with two covered patios, perfect for relaxation and entertaining. The low-maintenance landscaping ensures you have more time to enjoy your surroundings, while the garage shed and workshop provide ample storage and project space. Don’t miss the chance to make this charming home your own!
供热:
朝向:
房屋结构:
物业费:
$600/月
Listing Courtesy of REMAX Professionals (LD)

需要更多信息吗? 比如它的详细户型图?看看现业主的房产证?土地的允许用途?有什么限制?这个房子的边界在哪里?有标准的测量图吗?请立刻微信联络我们,我们会发给您更多的信息。
若这个房子有什么动态(如价格下调),我们会立刻用电子邮件及时通知您:

预约看房

百闻,不如亲眼一见。

维多利亚著名华人经纪:Bill Liu-23年维多利亚经验,极熟知市场,维房网客户100%一致推荐!点这里看他的详细介绍。

Bill Liu

过去5年大维成交最多的华人经纪之一。 这么多客户的选择 - 问他,没错!

很多房子,实地看到和照片上是完全不同的概念。

听听Bill对这个房子怎么评论?有问必答。

买房卖房 投资置业,应该交给:

一个有市场眼光的人;
一个懂你需求的人;
一个专业的人;
一个值得你信赖的人。

若需要帮您安排看房, 请立刻添加维房网微信:VicFangWang

电子邮件:bill.liu.victoria@gmail.com

我们一定会尽力解答。

QR code
立刻扫描微信二维码,添加维房网
周边近期成交统计(4单)
【周边1公里左右】【过去半年】共成交【其它】【4单】。

要查询所有具体成交的房产地址、价格或时间等详情,请微信联络我们:VicFangWang。

附近几单的最近成交细节如下:
  • 2卧2卫1138呎其它,2007年建, 39万挂牌,于02-09日以39万成交。
  • 3卧2卫1248呎其它,1971年建, 45万挂牌,于01-06日以45万成交。
  • 2卧1卫1232呎其它,1982年建, 33万挂牌,于01-16日以32万成交。
按揭计算器
房屋价格:
首付:
贷款利率(%):
还款年限:
月供: