按揭计算 学区概况 附近在售房源 房源地图 预约看房 周边交易情况

房屋详细信息
MLS编号:
1030234
挂牌日:
2026-04-09 (上市22天)
土地性质:
建于:
1961年
挂牌价:
189.50万
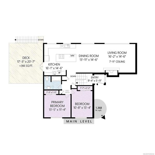
户型:
4卧2卫2厨 2车位
室内面积:
2700呎
占地:
10338呎
地址:
3960 Cherrilee Cres, Saanich East,Cadboro Bay区 查看地图
评估值:
158.10万(2025年)
地税:
$7807 (2025年)
卖方介绍:
这栋位于卡德伯勒湾 (Cadboro Bay) 的房屋经过精心翻新,坐落于一条安静友好的街道上,步行不到 10 分钟即可到达卡德伯勒湾村、吉罗公园海滩、神秘谷步道、维多利亚大学 (UVic)、公园、公交站和学校。房屋上下两层均已全面升级,拎包即可入住。宽敞的主层设有全新 Urbana 定制厨房,配备石英石台面、冷暖两用热泵以及上下两层的燃气壁炉。宽敞的起居室和餐厅通向一个巨大的阳光露台,是招待宾客的理想场所,同时还能欣赏到海滩、海洋、山脉和游艇俱乐部的壮丽景色。下层设有一间设施齐全的合法单卧室套房,配备室内洗衣设施,并可选择与主屋连通,非常适合招待长辈、保姆或出租以赚取额外收入。下层还设有第三间卧室/办公室和一个大型娱乐室,娱乐室通向宽敞的后院。为了提高效率,2025年安装了一套新的10.35千瓦太阳能电池板阵列。开放日:4月11日下午2点至4点

【以上为机器自动翻译,可能不通畅。请联系我们,免费获得这个房产的全中文介绍!】 原版英文介绍按这里
公共服务:
朝向:
周边环境:
房屋结构:
历史交易价格:
98万 (2019-05-31)
Listing Courtesy of Century 21 Queenswood Realty Ltd.

需要更多信息吗? 比如它的详细户型图?看看现业主的房产证?土地的允许用途?有什么限制?这个房子的边界在哪里?有标准的测量图吗?请立刻微信联络我们,我们会发给您更多的信息。
若这个房子有什么动态(如价格下调),我们会立刻用电子邮件及时通知您:

预约看房

百闻,不如亲眼一见。

维多利亚著名华人经纪:Bill Liu-曾经的建商背景,看房视觉独到,维房网客户100%一致推荐!点这里看他的详细介绍。

Bill Liu

过去5年大维成交最多的华人经纪之一。 这么多客户的选择 - 问他,没错!

很多房子,实地看到和照片上是完全不同的概念。

听听Bill对这个房子怎么评论?有问必答。

买房卖房 投资置业,应该交给:

一个有市场眼光的人;
一个懂你需求的人;
一个专业的人;
一个值得你信赖的人。

若需要帮您安排看房, 请立刻添加维房网微信:VicFangWang

电子邮件:bill.liu.victoria@gmail.com

我们一定会尽力解答。

QR code
立刻扫描微信二维码,添加维房网
周边近期成交统计(19单)
【周边1公里左右】【过去半年】共成交【独栋】【19单】。

要查询所有具体成交的房产地址、价格或时间等详情,请微信联络我们:VicFangWang。

附近几单的最近成交细节如下:
  • 3卧2卫2327呎独栋,1986年建, 135万挂牌,于04-09日以132万成交。
  • 2卧2卫2480呎独栋,1993年建, 160万挂牌,于04-14日以155万成交。
  • 3卧2卫1884呎独栋,1948年建, 139万挂牌,于04-01日以135万成交。
周边公立学校

学校排名
小学Frank Hobbs10/49
初中Arbutus Global--
高中Mount Douglas12/16
* 排名基于Fraser学院2019学校报告。查看
** 点击学校名字可以查看该校所属房源。
按揭计算器
房屋价格:
首付:
贷款利率(%):
还款年限:
月供: